0
0
0
Избранное
Корзина

Печь-каменка Теплодар Былина-24Ч Панорама 1.2 (без дверцы)

Тип установки: напольный
Тип питания: дерево
Тип питания: прессованные брикеты
Тип питания: прессованные брикеты
Мощность: 24 кВт
Материал: чугун
Ширина: 59.5 см
Высота: 74 см
Глубина: 92.5 см
Характеристики
Дополнительная информация
Тип печь-каменка
Тип установки напольный
Материал чугун
Цвет черный
Отапливаемый объем парилки 24
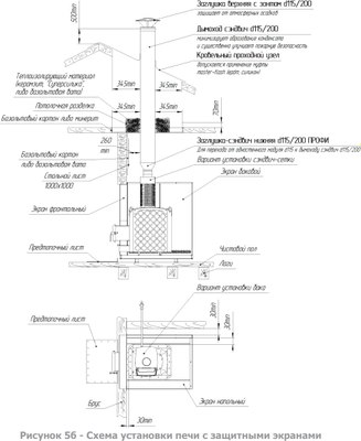
Диаметр дымохода 11.5
Расположение дымохода сверху
Особенности конструкции выносная топка
Дверца нет
Длина поленьев 49
Масса камней 150
Ширина 59.5
Высота 74
Глубина 92.5
Масса 138
Коллекция Былина-Сетка (Теплодар)
Мощность 24

Отзывы

У этого товара нет ни одного отзыва. Вы можете стать первым.

Вы смотрели

Хочешь узнавать про акции и скидки первым?
Я согласен с условиями Пользовательского соглашения
Добавлен в корзину: