0
0
0
Избранное
Корзина

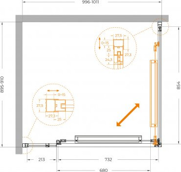
Душевой уголок Cezares LUX-AH-FS-11-100/90-C-GM

Ориентация: универсальная (U) ; Материал дверей/стенок: закаленное стекло ; Ширина: 89.5;91 см; Высота: 195 см; Длина: 99.6;101.1 см;
Характеристики
Характеристики
Смеситель нет
Дополнительная информация
Тип душевой уголок
Материал дверей/стенок закаленное стекло
Толщина дверей/стенок 6
Конструкция дверей раздвижная
Количество створок дверей 1
Тип стекла передних стенок прозрачное
Форма поддона прямоугольная
Ширина 89.5;91
Высота 195
Цвет стекла передних стенок бесцветное
Цвет профиля дверей/стенок серый
Тип установки к двум стенам (на угол)
Название расцветки оружейная сталь
Верхний душ нет
Материал профиля дверей/стенок алюминий
Дополнительные элементы (в комплекте) уплотнители
Тип роликов двойные
Ширина входа 68
Покрытие профиля дверей/стенок матовое
Ручной душ (лейка) нет
Для людей с ограниченной мобильностью есть
Поддон в комплекте нет
Ориентация универсальная (U)

Отзывы

У этого товара нет ни одного отзыва. Вы можете стать первым.

Вы смотрели

Хочешь узнавать про акции и скидки первым?
Я согласен с условиями Пользовательского соглашения
Добавлен в корзину: